Neubau! 4-Zimmer-Wohnung mit Fußbodenheizung und Südbalkon in Rostock-Groß Klein
Kleiner Warnowdamm 1e
- Gesamtmiete:
- 1.673,48 €/Monat
- Grundmiete:
- 1.348,48 €/Monat
- Kaution:
- 4045,44 €
- Zimmer:
- 4
- Wohnfläche:
- 99,19 m2
- Etage:
- Erdgeschoss
- Verfügbarkeit:
- Nach Vereinbarung
- Wohnungsnr.:
- 10/0101.0001.0002
Objektbeschreibung
Zwischen dem Rostocker Stadtzentrum und dem Warnemünder Strand entstand ein komplett neues Wohnquartier. Drei geschmackvolle Mehrfamilienhäuser bieten Ihnen zukünftig ein komfortables Zuhause in ruhiger und grüner Lage.
Alle Wohnungen sind bequem mit dem Aufzug erreichbar. Sie können bei Bedarf bis in den Keller und in die Tiefgarage fahren. Durchdachte Grundrisse, Balkone, geschmackvolle Bäder und hochwertige Fußböden. Die Wohnungen in Kleiner Warnowdamm bieten Ihnen neben einer zeitgemäßen Ausstattung auch viel Wohnkomfort. Doch nicht nur die Wohnungen überzeugen auf ganzer Linie. Es wurde auch an das funktionelle Drumherum gedacht: zu jeder Wohnung gehört ein privater Keller mit Stromanschluss, in dem Sie Ihre alltäglichen Dinge problemlos lagern können. Abstellflächen und praktische Fahrradräume ermöglichen Ihnen, Ihr Fahrrad oder Ihren Kinderwagen ganzjährig sicher und trocken abzustellen. 
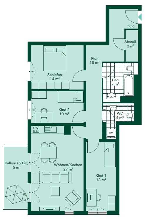
Freuen Sie sich auf ein modernes Wohnviertel, hochwertige Wohnungen, grüne Innenhöfe und einen großartigen Spielbereich für Ihre Jüngsten. Es erwarten Sie funktionelle Wohnungen mit attraktiver Ausstattung: bodentiefe Fenster, Fußbodenheizung, großzügige Bäder mit Handtuchheizkörpern sowie Fußböden in Dielenoptik. Die Wohnung befindet sich im Erdgeschoss und ist auch stufenlos im Eingangsbereich über eine Rampe erreichbar. Sie können auch mit dem Aufzug direkt aus der Tiefgarage ins Erdgeschoss fahren. Der Küchenbereich ist offen zum Wohnbereich gestaltet. Sehr praktisch sind die beiden Bäder. Ein Bad ist mit einer Dusche ausgestattet, das zweite mit einer Badewanne. Im Abstellraum können Sie bequem Ihre Waschmaschine anschließen.
Wir vermieten im Auftrag eines Eigentümers.
Ausstattung
Designbelag, Südbalkon, offene Küche mit E-Herdanschluss, gefliestes Bad mit Badewanne und Dusche, zentrale Warmwasserbereitung, Fußbodenheizung, Abstellraum in der Wohnung, Keller, Tiefgaragenstellplatz, Hausmeisterservice, Hausreinigungsservice
Lage
Rostock - Groß Klein ist ein vielfältiger Stadtteil im Nordwesten der Hansestadt Rostock. Schulen, Einkaufsmöglichkeiten für den täglichen Bedarf sowie öffentliche Verkehrsmittel erreichen Sie in wenigen Gehminuten. Der IGA Park Rostock in direkter Nähe ist als Erlebnisoase Veranstaltungsort, Freizeitgelände, Park und Museum in einem. Das GDZ-Ärztezentrum sowie das Einkaufszentrum "Warnowpark" im angrenzenden Stadtteil Lütten Klein erreichen Sie bereits in wenigen Minuten bequem mit der S-Bahn. Zum Ostseebad Warnemünde ist es ein Katzensprung - auch hier können Sie die S-Bahn nutzen oder bei schönem Wetter einfach eine Fahrradtour zum Strand unternehmen.
Energieausweis
| Art: | Energiebedarfsausweis | 
| Energiekennwert: | 44,90 kWh/m²a | 
| Baujahr: | 2024 | 
| Effizienzklasse: | A | 
Wir vermieten im Auftrag eines Eigentümers.
Für die Anfertigung, Lieferung und Montage der Namensschilder an Briefkasten und Klingelanlage berechnen wir Ihnen einen Festpreis (brutto) von max. 65,00 Euro.
Der Energieausweis sowie die veröffentlichten Pflichtangaben aus dem Energieausweis erhält der Mietinteressent ausschließlich zur Information. Für den Energieausweis ist das GEG in der jeweils geltenden Fassung maßgebend.
Sie sind noch nicht in unserer Interessentendatei angemeldet? Dann geben Sie hier Ihren kostenlosen Suchauftrag für Ihre Wunschwohnung an.





 
                                                            
                                                     
                                                            
                                                     
                                                            
                                                     
                                                            
                                                     
                                                            
                                                     
                                                            
                                                     
                                                            
                                                     
                                                            
                                                     
                                                            
                                                     
                                                            
                                                     
                                                            
                                                     
                                                            
                                                     
                                                            
                                                     
                                                            
                                                     
                                                            
                                                     
                                                            
                                                     
                                                            
                                                     
                                                            
                                                     
                                                            
                                                     
                                                            
                                                     
                                                 
                                                 
                                                 
                                                 
                                                 
                                                 
                                                 
                                                 
                                                 
                                                 
                                                 
                                                 
                                                 
                                                 
                                                 
                                                 
                                                 
                                                 
                                                 
                                                